Garden Museum
The redevelopment of the Garden Museum
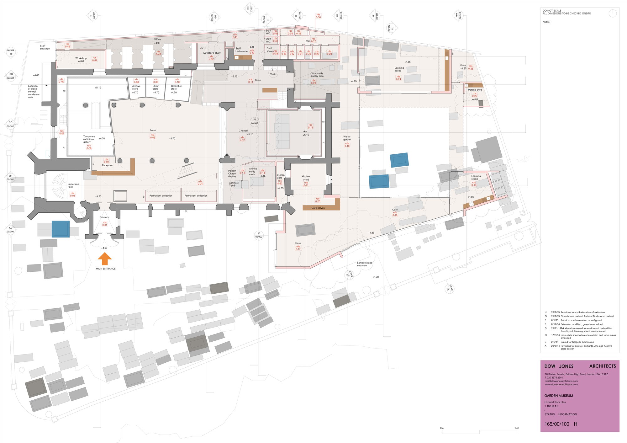
In 2013 we won an OJEU tendered competition to design the second phase of the Garden Museum.
While our Phase I scheme, built in 2008, addressed pressing needs of dedicated spaces within the existing building, Phase II brings the opportunity for the museum to create a public face. Being housed in a church building, and adjacent to Lambeth Palace, the museum is often mistaken for part of the palace. Our new building provides a much-needed urban presence; we have extended the museum as a cluster of copper clad pavilions that form a cloister garden.
The landscape design was developed in collaboration with Dan Pearson. The relationship between the precision of the new and the patina of the old, combined with the colour and texture of the planting, will define the character of the place.
Our intervention in the church is reversible and brings activity into a listed building. Developing the museum site brings many challenges; it is a significant archeological site, with listed tombs, protected trees and protected views. Our scheme responds to these parameters whilst making a building that will have an iconic presence in the city.
MEP Engineer:
OR Consulting
Structural Engineer:
Momentum
Quantity Surveyors:
Pierce Hill
Approved Building Inspector:
Assent Building Control
Landscape Design:
Dan Pearson
Landscape Design:
Christopher Bradley Hole
Conservation:
Neil Burton
Lighting Designer:
DHA
Tree Consultants:
Root Cause
A.V/I.T:
ASI
Archaeology:
Archaeology South-East
Project Managers:
G&T
Catering:
Ben Benton
CDM:
BBS
Photographer:
David Grandorge
Photographer:
Anthony Coleman
Awards
- Shortlisted, New London Architecture Award, Conservation and Retrofit, 2018
- Winner, Civic Trust Award, 2018
- Shortlisted, RICS Award, Community Benefit, 2018
- Shortlisted, RICS Award, Conservation, 2018
- Finalist, BD Architect of the Year Award, Refurbishment, 2018
- Finalist, Woman Architect of the Year, 2018
- Commendation, Schueco Excellence Award for Design and Innovation, 2018
- Winner, Architects Journal Retrofit Award, Museums & Galleries, 2018
- Shortlisted, Structural Timber Awards, Project of the Year, 2017
- Shortlisted, Structural Timber Awards, Architect of the Year, 2017
- Shortlisted, AJ Architecture Award, Heritage Project of the Year, 2017
- Shortlisted, Selwyn Goldsmith Award for Universal Design, 2017
- Shortlisted, MacEwan Award, 2017
Publications
- Elizabeth Hopkirk, ‘Dow Jones Harvests Garden Museum Victory’, in: Building Design(London, UK, March 28, 2013)
- Ellis Woodman, ‘The Garden Museum – Slowly Does It’, in: Architects' Journal(London, April 18, 2017)
- David Sexton, ‘Dreaming Green’, in: London Evening Standard(London, May 17, 2017)
- Edwin Heathcote, ‘London’s New-Look Garden Museum Offers a Hymn to Horticulture’, in: Financial Times(London, May 19, 2017)




















